POVISIONSFREIE! Mehrfamilienhaus mit Gewerbe und Lager! Über 8,00 % Rendite in Göbrichen
Objektart
Adresse
Objektdaten
Informationen
Ausstattung
Details
Käufer provisionsfrei - Renditestarkes Wohn- und Gewerbeensemble mit Entwicklungspotenzial
Auf einem ca. 1.037 m² großen Grundstück präsentiert sich dieses vielseitige Immobilienensemble mit einer attraktiven Kombination aus Wohnraum, Gewerbeflächen und zusätzlichem Ausbaupotenzial. Die Immobilie eignet sich ideal für Kapitalanleger, Investoren oder Gewerbetreibende, die eine Immobilie mit stabilen Einnahmen und langfristiger Perspektive suchen.
Mehrfamilienhaus mit gesicherter Mieteinnahme
Das Herzstück der Liegenschaft bildet ein Mehrfamilienhaus mit ca. 394 m² Wohnfläche, dessen Ursprungsbaujahr um 1900 liegt. In den Jahren 2019 bis 2024 wurden teilweise Modernisierungs- und Renovierungsmaßnahmen durchgeführt, die eine solide Grundlage für weitere individuelle Gestaltungsmöglichkeiten bieten
Das Wohnhaus ist vollständig an das Land Baden-Württemberg vermietet. Die Nutzung erfolgt zur Unterbringung von Personen aus Erstaufnahmeeinrichtungen.
Der bestehende Mietvertrag läuft bis zum 31.12.2027 und generiert derzeit eine monatliche Kaltmiete von 3.675 EUR, was eine planbare und sichere Einnahmequelle darstellt.
Flexible Aufteilungsmöglichkeiten
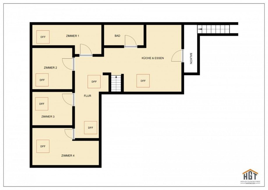
Mit überschaubarem baulichem Aufwand kann das Gebäude künftig in fünf separate Wohneinheiten aufgeteilt werden, was zusätzliche Flexibilität für eine spätere Nutzung oder Vermietungsstrategie bietet.
Mögliche Aufteilung:
Wohnung 1 - EG: 2 Zimmer, Küche, Bad - ca. 65 m²
Wohnung 2 - EG: 2 Zimmer, Küche, Bad - ca. 65 m²
Wohnung 3 - OG: 3 Zimmer, Küche, Bad - ca. 110 m²
Wohnung 4 - OG: 2 Zimmer, Küche, Bad - ca. 45 m²
Wohnung 5 - DG: 5 Zimmer, Küche, Bad - ca. 109 m²
Diese Struktur eröffnet langfristig zusätzliche Möglichkeiten zur Optimierung der Mietrendite.
Gewerbeeinheit im Erdgeschoss
Im Erdgeschoss des Hauptgebäudes befindet sich eine Gewerbefläche mit ca. 44 m², die früher als Gaststätte bzw. Imbiss genutzt wurde. Ergänzt wird sie durch ca. 50 m² Lagerfläche im Gewölbekeller.
Die Einheit ist aktuell vermietet und erzielt eine monatliche Kaltmiete von 500 EUR.
Nebengebäude mit vielseitiger Nutzung
Auf dem Grundstück befindet sich außerdem ein freistehendes Nebengebäude mit ca. 207 m² Nutzfläche, das sich ideal für Handwerksbetriebe, Lager, Produktion oder Werkstattnutzung eignet.
Die Fläche ist derzeit für ca. 890 EUR monatlich kalt vermietet.
Ein weiteres Nebengebäude mit ca. 69 m² bietet zusätzliche Lager- oder Abstellmöglichkeiten.
Potenzial zur Umnutzung
Nach § 50 Abs. 2 der Landesbauordnung Baden-Württemberg (LBO) kann unter bestimmten Voraussetzungen eine Umnutzung von nicht störendem Gewerbe in Wohnraum innerhalb bestehender Gebäude erfolgen.
Damit besteht perspektivisch die Möglichkeit, Gewerbeflächen - sofern gewünscht - in zusätzlichen Wohnraum umzuwandeln und damit den Wohnanteil der Immobilie zu erhöhen.
Außenbereich
Der Innenhof bietet vier PKW-Stellplätze sowie eine Garage, die sowohl zur Eigennutzung als auch zur zusätzlichen Vermietung genutzt werden können.
Aktuelle Mieteinnahmen
Monatliche Einnahmen (IST):
Wohnhaus (bis 12/2027 vermietet): 3.675 EUR
Gewerbeeinheit im EG: 500 EUR
Nebengebäude (207 m²): 890 EUR
Gesamtmiete monatlich: 5.065 EUR
Gesamtmiete jährlich: 60.780 EUR
Die aktuellen Einnahmen entsprechen einer Bruttoanfangsrendite von über 8,00 %.
Fazit
Dieses Objekt überzeugt durch eine attraktive Kombination aus stabilen Mieteinnahmen, vielfältigen Nutzungsmöglichkeiten und langfristigem Entwicklungspotenzial.
Ob als Kapitalanlage, gemischt genutzte Immobilie oder Standort für Wohnen und Gewerbe - dieses Anwesen bietet eine solide Basis für nachhaltige Investitionen.
Käufer provisionsfrei
Modernisierungen & Instandhaltungen
Das Gebäude wurde fortlaufend instand gehalten und modernisiert. Hier eine Übersicht der wichtigsten Maßnahmen:
ca. 1980: Austausch der Fenster im EG und OG, Sanierung der Sanitärbereiche im OG
ca. 1980: Dach- und Fassadensanierung (vermutlich im Zuge der Hauptsanierung)
1999: Einbau der Heizungsanlage (Wartung seither lückenlos und ohne Beanstandungen)
2016: Ausbau des Erdgeschosses zu 3 Zimmern mit Küche und zwei Duschbädern mit WC
2016: Teilweise Elektrik im OG erneuert, Einbau eines separaten WCs
2018: Ausbau des Verkaufsraums im EG, Innenausbau des Nebengebäudes, Ausbesserung der Pflasterung im Innenhof, Austausch Garagentor
2019: Ausbau des Dachgeschosses, Einbau eines Zwischenzählers für den Verkaufsraum, Fassadenarbeiten
2022: Einbau neuer Dachfenster, Rettungsstufen / Notausstiege
2023: Erneuerung Stromzählerhauptkasten ab Hausanschluss, Umbau/Neugestaltung Treppenhaus inkl. Brandschutzmaßnahmen
2023: Neue Dusche und Küche im OG (rechte Seite), neue Eingangstüren für OG-Einheiten & DG mit F30-Brandschutz
Die Immobilie befindet sich in Göbichen, einem Teilort der Gemeinde Neulingen im Enzkreis in Baden-Württemberg. Die Lage zeichnet sich durch eine ruhige, ländlich geprägte Umgebung aus - mit gleichzeitig hervorragender Anbindung an wichtige regionale Zentren wie Bretten und Pforzheim.
Die Stadt Pforzheim ist nur ca. 10 Autominuten entfernt und bietet eine breite Auswahl an Einkaufsmöglichkeiten, Schulen, medizinischer Versorgung, kulturellen Angeboten und weiterführenden Verkehrsanbindungen (Autobahn A8, ICE-Anschluss). Auch die Stadt Bretten, mit ihrer charmanten Altstadt und guter Infrastruktur, ist in ca. 15 Minuten erreichbar.
Verkehrsanbindung
Bushaltestelle in fußläufiger Entfernung (Verbindung innerhalb der Region)
Autobahn A8 (Anschlussstelle Pforzheim-West): ca. 10 km entfernt
B10/B294: in wenigen Minuten erreichbar - ideal für Pendler und Gewerbetreibende
Damit ist die Lage verkehrstechnisch sehr gut erschlossen, sowohl für den öffentlichen Personennahverkehr als auch den Individualverkehr.
Versorgung des täglichen Bedarfs
Im näheren Umfeld befinden sich:
Supermärkte, Bäckereien und Metzger in den Nachbarorten Eisingen, Ersingen, Bauschlott und Bilfingen (5-10 Minuten Fahrzeit)
Ärzte, Apotheken, Kindergärten und Schulen im erweiterten Umkreis
Größeres Einkaufs- und Dienstleistungsangebot in Pforzheim und Bretten
Freizeitmöglichkeiten wie Sportvereine, Wander- und Radwege sowie kulturelle Einrichtungen in der Umgebung
Fazit zur Lage
Die Immobilie profitiert von einer ausgewogenen Mischung aus Ruhe, Natur und Nähe zu urbaner Infrastruktur. Die gute Anbindung an den öffentlichen Nahverkehr und die Nähe zu den wirtschaftsstarken Städten Pforzheim und Bretten machen den Standort sowohl für Bewohner als auch Gewerbetreibende attraktiv und zukunftssicher.
Fakten auf einen Blick
Rendite: Über 8,00 %
Grundstücksgröße: ca. 1.037m²
Gesamtnutzfläche (inkl. Nebengebäude): über 600m²
Wohnhaus: Ursprungsbaujahr ca. 1900, modernisiert 2019-2024
Derzeitige Mieteinnahme: 3.500EUR kalt/Monat (bis 12/2027)
Gewerbeeinheit: ca. 500EUR Mieterwartung/Monat
Freistehende Gewerbefläche: ca. 207m², ca. 890EUR Mieterwartung/Monat
Nebengebäude (Lager): ca. 69m²
Stellplätze: 4 PKW + 1 Garage
Provisionsfrei für den Käufer
Zukünftiges Wohnertragspotenzial bei Umwandlung: deutlich steigerbar
Energieausweis (Bedarfsausweis)
142 kWh / (m²*a) Endenergiebedarf
142 kWh / (m²*a) Endenergiebedarf
142 kWh / (m²*a) Endenergiebedarf
Weitere Informationen
| Wesentlicher Energieträger | Öl |
| Energieausweis Ausstelldatum | 2019-12-06 |
| Energieausweis gültig bis | 05.12.2029 |
| Energieausweis Jahrgang | ab dem 1.5.2014 |
| Energieausweis Werteklasse | E |
| Energieausweis Baujahr | 1900 |
| Energieausweis Gebäudeart | Wohngebäude |
| Heizung | Zentralheizung |
| Befeuerung | Öl |
